Viel Platz für Ihre Ideen: Ladenfläche mit Lager Nähe Ullsteinhaus!
Mariendorfer Damm 28, 12109 Berlin
Objektbeschreibung
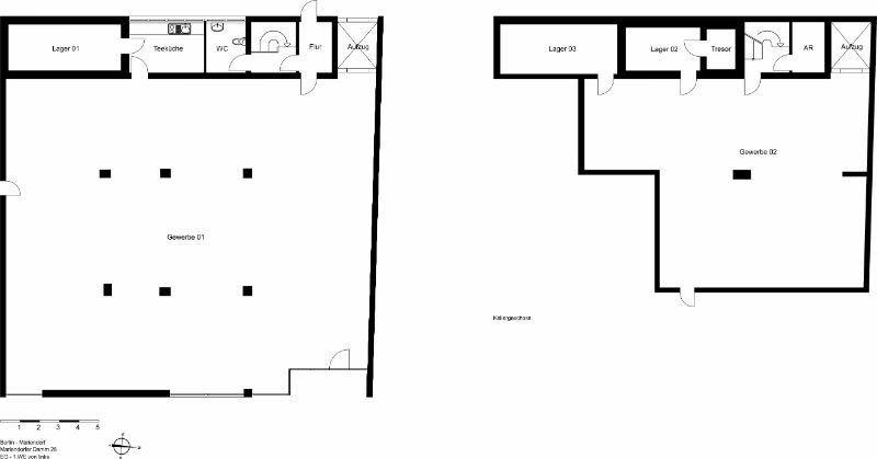
Das Gebäude am Mariendorfer Damm 28 wurde im Jahr 1966 errichtet. Die ca. 326m² befinden sich im Erdgeschoss des Wohn- und Geschäftshauses. Die Fassade des Objektes wurde bis Anfang 2019 saniert. Im Kellergeschoss befinden sich weitere 160m² Lagerfläche, die direkt mit der Gewerbeeinheit verbunden sind.
Preise und Kosten
| Mietpreis | 5.990,00 € |
|---|---|
| Betriebskosten | 950,00 € |
| Heizkosten | 655,00 € |
| Kaution | 17.970,00 € |
| Gesamtmiete | 7.595,00 € |
Immobiliendetails
| Objektnummer | C607.017392-021 |
|---|---|
| Frei ab | ab sofort |
| Fläche | 326,59 m2 |
| Typ | Ladenlokal |
| Nutzfläche | 326.59 m2 |
| Baujahr | 1966 |
Ausstattung
Auf einen Blick:
- lange Schaufensterfront
- zentrale Lage an der U6 Ullsteinstraße
- anmietbare Stellplätze nach Verfügbarkeit
Lage
Im näheren Umfeld sind alle nötigen Einrichtungen des täglichen Bedarfs wie Ärzte, Schulen, Kindergärten und Einkaufsmöglichkeiten zu finden.
In unmittelbarer Nähe befindet sich der U-Bahnhof "Ullsteinstraße" (U6), womit man nur knapp 30 Minuten vom Potsdamer Platz entfernt ist. Die A100 ist nur wenige Minuten mit dem Auto entfernt, wodurch man eine optionale Anbindung zum Rest von Berlin und dem Umland hat. Der Flughafen Schönefeld ist ebenfalls mit dem Auto in nur 20 Minuten erreichbar.
Sonstiges
Covivio - eines der größten Immobilienunternehmen in Europa überwindet Grenzen, möchte überall den gleichen, bestmöglichen Service bieten und diesen auch in Zukunft auf die sich ändernden Bedürfnisse ihrer Kund:innen ausrichten. In Deutschland besitzt und bewirtschaftet Covivio über 41.000 Wohnimmobilien in den Städten Berlin, Leipzig, Dresden, Hamburg sowie in der Rhein-Ruhr-Region.
Gut für Sie zu wissen!
Covivio Mitarbeiter:innen werden von Ihnen bei Abschluss eines Mietvertrages niemals Gebühren verlangen. Wir bitten Kund:innen, Betrugsmaschen (insbesondere im Internet) oder jede Form von Compliance-Verstößen zu melden. Für Covivio ist Compliance Bestandteil der Unternehmenskultur. Nur so können wir als verlässlicher und vertrauenswürdiger Partner handeln und als ein solcher wahrgenommen werden.
Weitere Informationen finden Sie hier: https://www.covivio.immo/compliance
Grundriss

Energiewerte
| Energieausweisart | Verbrauchsenergieausweis |
|---|---|
| Heizungsart | Gasheizung |
| Energieeffizienzklasse | E |
| Energieausweiserstellungsdatum | 25.06.2024 |
Ansprechpartner:in
| Herr Nikolaus Lechner | |
|---|---|
| Anschrift | Pariser Str. 10707 Berlin |
| Telefon | 030 221821765 |
| nikolaus.lechner@covivio.immo |
Ansprechpartner
Ihnen gefällt, was Sie sehen? Kontaktieren Sie uns gerne!
Herr Nikolaus Lechner
























