Repräsentative Osteopathiepraxis in zentraler Lage – 500 m vom Haupt-Bhf. – direkt an der Prager Straße!

St. Petersburger Str. 28, 01069 Dresden

  • 5.585,00 € Kaltmiete
  • 223,26 m2 Fläche
  • Aufzug

Objektbeschreibung

Die Einheit ist noch bis 31.10.2026 offiziell vermietet. Eine vorzeitige Übernahme ist nach Absprache möglich.

Vereinbaren Sie jetzt gleich unter 0341 31 959 30 62 einen Besichtigungstermin. Besichtigungen sind ab sofort möglich. Verfügbarkeit nach Abstimmung mit aktuellem Mieter.

Der aktuelle Mieter könnte die Osteopathie-Praxis vorzeitig abgeben. Zudem könnte die Geschäftsausstattung vom neuen Mieter gegen Abstandssumme übernommen werden.

*****Wichtiger Hinweis*****
Bitte beachten Sie, dass die künftige, geplante Nutzung aus bauordnungsrechtlich geprüft werden muss. Ggf. ist eine Nutzungsänderung bei der Stadt Dresden zu beantragen.

Irrtum vorbehalten.

Preise und Kosten

Mietpreis 5.585,00 €
Betriebskosten 400,00 €
Heizkosten 501,00 €
Kaution 16.755,00 €
Gesamtmiete 6.486,00 €

Immobiliendetails

Objekt­nummer C459.019202-124
Frei ab 01.11.2026
Fläche 223,26 m2
Nutzfläche 223.26 m2
Baujahr 1966

Ausstattung

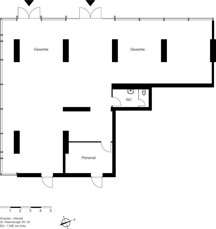
Großzügig geschnittenes Ladengeschäft mit vollverglasten Außenwänden - ideal für flexible Raumgestaltung.
Die exklusiven Schaufenster bringen viel natürliches Tageslicht in die vakanten Erdgeschossflächen. Die Raumhöhen sind beeindruckend.

Die große Ladenfläche, das WC, sowie die Personalräume die auch als Lager-/Archiv genutzt werden können - sind direkt verbunden.

Die Inhalte wurden mit größter Sorgfalt erstellt. Wir übernehmen keine Gewährleistung und keine Haftung für die Richtigkeit und Vollständigkeit der Angaben in unseren Exposés.

Sonstiges

Covivio - eines der größten Immobilienunternehmen in Europa
überwindet Grenzen, möchte überall den gleichen, bestmöglichen
Service bieten und diesen auch in Zukunft auf die sich ändernden
Bedürfnisse ihrer Kund:innen ausrichten. In Deutschland besitzt und
bewirtschaftet Covivio über 41.000 Wohnimmobilien in den Städten
Berlin, Leipzig, Dresden, Hamburg sowie in der Rhein-Ruhr-Region.

Gut für Sie zu wissen:

Covivio Mitarbeiter:innen werden von Ihnen bei Abschluss eines
Mietvertrages niemals Gebühren verlangen.
Wir bitten Kund:innen, Betrugsmaschen (insbesondere im Internet)
oder jede Form von Compliance-Verstößen zu melden.
Für Covivio ist Compliance Bestandteil der Unternehmenskultur.
Nur so können wir als verlässlicher und vertrauenswürdiger Partner
handeln und als ein solcher wahrgenommen werden.
Weitere Informationen finden Sie hier:

https://www.covivio.immo/compliance

Grundriss

Energiewerte

Energie­ausweisart Bedarfs­energieausweis
Endenergiebedarf 108.0
Energie­effizienz­klasse D
Energieausweis­erstellungsdatum 23.05.2018

Ansprechpartner:in

Frau Sandra Schlüter
Anschrift Nordplatz 2 04105 Leipzig
Telefon +49341319593062
E-Mail sandra.schlueter@covivio.immo

Ansprechpartner

Ihnen gefällt, was Sie sehen? Kontaktieren Sie uns gerne!

Frau Sandra Schlüter

+49341319593062

  • Dieses Feld dient zur Validierung und sollte nicht verändert werden.

    Das könnte Sie auch interessieren

    • Leubnitz-Passage. Lichtdurchflutet, Aufzug, zentrale Lage - perfekt als Praxis oder Büro.

      Wilhelm-Franke-Str. 38, 01219 Dresden

      • 615,00 € Kaltmiete
      • 68,37 m2 Fläche
      • 2 Zimmer
      Mehr
    • TEILBARE Gewerbefläche mit vielfältigen Nutzungsmöglichkeiten sucht Nachmieter

      Wilhelm-Franke-Str. 38, 01219 Dresden

      • 1.124,00 € Kaltmiete
      • 124,87 m2 Fläche
      • 4 Zimmer
      Mehr