Restaurant mit schönem Außenbereich in Friedenauer Bestlage
Rheinstr. 65, 12159 Berlin
Objektbeschreibung
In einem schmucken Gebäudeensemble der Jahrhundertwende gelegen, bietet diese charmante Lokalität viel Raum für Ihre Ideen und Konzepte.
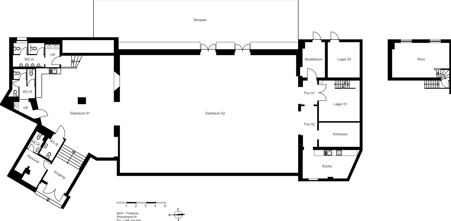
Mit gut 220m² stellt der große Saal das Herzstück der Fläche dar. Von hier aus erreicht man den ruhigen Außenbereich mit ca. 92m².
Die Kombination aus historischem Flair, großzügigen Raumstrukturen und direkter Straßenlage schafft dabei die allerbesten Voraussetzungen für Ihr Geschäft.
Melden Sie sich bei uns – wir freuen uns darauf, Ihre Pläne Wirklichkeit werden zu lassen!
Preise und Kosten
| Mietpreis | 11.500,00 € |
|---|---|
| Betriebskosten | 760,00 € |
| Heizkosten | 639,00 € |
| Kaution | 34.500,00 € |
| Gesamtmiete | 12.899,00 € |
Immobiliendetails
| Objektnummer | C349.017267-011 |
|---|---|
| Frei ab | ab sofort |
| Fläche | 446,83 m2 |
| Nutzfläche | 446.83 m2 |
| Baujahr | 1908 |
Ausstattung
- großzügige Innenfläche
- hohe Decken
- geschützte Außenterrasse mit Süd-Ost-Ausrichtung
- separates Büro im 1. OG für ruhiges Arbeiten
- Isolierfenster
Lage
Die Gewerbefläche befindet sich im Herzen von Friedenau, direkt an der belebten und beliebten Rheinstraße.
Diese Umgebung ist geprägt von Einzelhandel, Gastronomie und Dienstleistern – ideal für Unternehmen mit Kundenverkehr.
Dank der Nähe zur U-Bahnlinie U9 (Friedrich-Wilhelm-Platz), S-Bahnlinie S1 (Friedenau) und mehreren Buslinien ist der Standort hervorragend erreichbar für Ihre Gäste und Mitarbeiter.
Sonstiges
Covivio - eines der größten Immobilienunternehmen in Europa überwindet Grenzen, möchte überall den gleichen, bestmöglichen Service bieten und diesen auch in Zukunft auf die sich ändernden Bedürfnisse ihrer Kund:innen ausrichten. In Deutschland besitzt und bewirtschaftet Covivio über 41.000 Wohnimmobilien in den Städten Berlin, Leipzig, Dresden, Hamburg sowie in der Rhein-Ruhr-Region.
Gut für Sie zu wissen!
Covivio Mitarbeiter:innen werden von Ihnen bei Abschluss eines Mietvertrages niemals Gebühren verlangen. Wir bitten Kund:innen, Betrugsmaschen (insbesondere im Internet) oder jede Form von Compliance-Verstößen zu melden. Für Covivio ist Compliance Bestandteil der Unternehmenskultur. Nur so können wir als verlässlicher und vertrauenswürdiger Partner handeln und als ein solcher wahrgenommen werden.
Weitere Informationen finden Sie hier: https://www.covivio.immo/compliance/
Grundriss

Energiewerte
| Energieausweisart | Verbrauchsenergieausweis |
|---|---|
| Energieeffizienzklasse | E |
| Energieausweiserstellungsdatum | 08.02.2024 |
Ansprechpartner:in
| Herr Nikolaus Lechner | |
|---|---|
| Anschrift | Pariser Str. 10707 Berlin |
| Telefon | 030 221821765 |
| nikolaus.lechner@covivio.immo |
Ansprechpartner
Ihnen gefällt, was Sie sehen? Kontaktieren Sie uns gerne!
Herr Nikolaus Lechner





























